gregory merryweather architect
architecture
135 w 70
225 w 112 st
highwood housing
loft system
39 e 12 st
316 manhattan ave
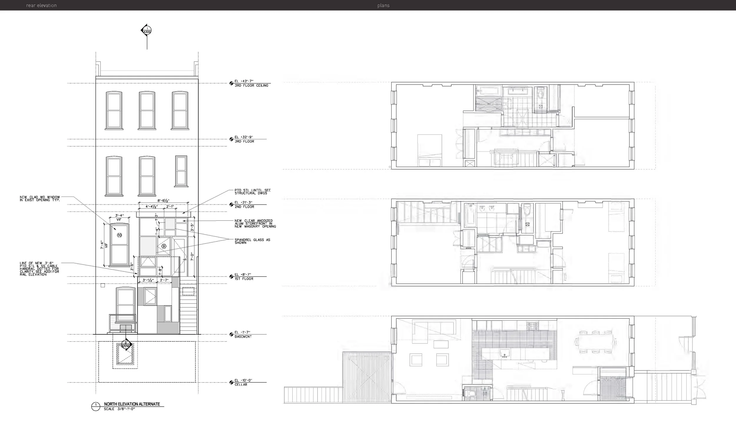
258 hall st
316 cumberland st
teaching
pratt_2ndyr_studentwork
pratt_3rdyr_studentwork
information
contact
architecture
135 w 70
225 w 112 st
highwood housing
loft system
39 e 12 st
316 manhattan ave
258 hall st
316 cumberland st
teaching
pratt_2ndyr_studentwork
pratt_3rdyr_studentwork
information
contact
GREGORY MERRYWEATHER ARCHITECT
258 Hall St
Brooklyn, NY 11205
United States
+
A Harlem House That Can Baby-Sit in the New York Times
+
+
+
+